Астелия – ИНДИВИДУАЛЬНЫЙ ПРОЕКТ ДОМА ИЗ КЛЕЕНОГО БРУСА

О проекте

История создания

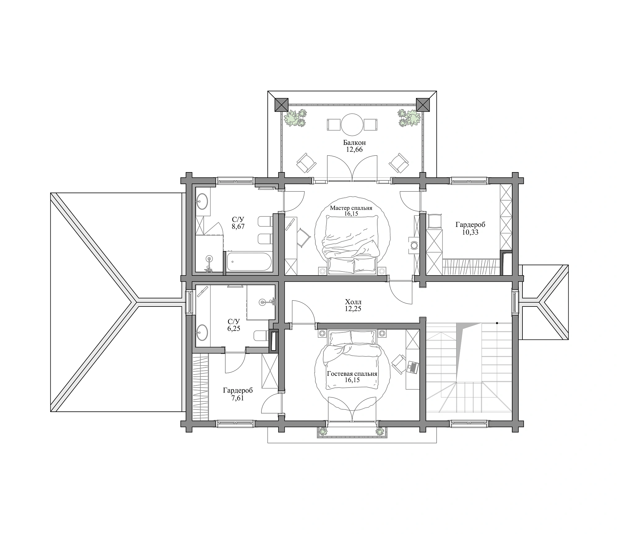
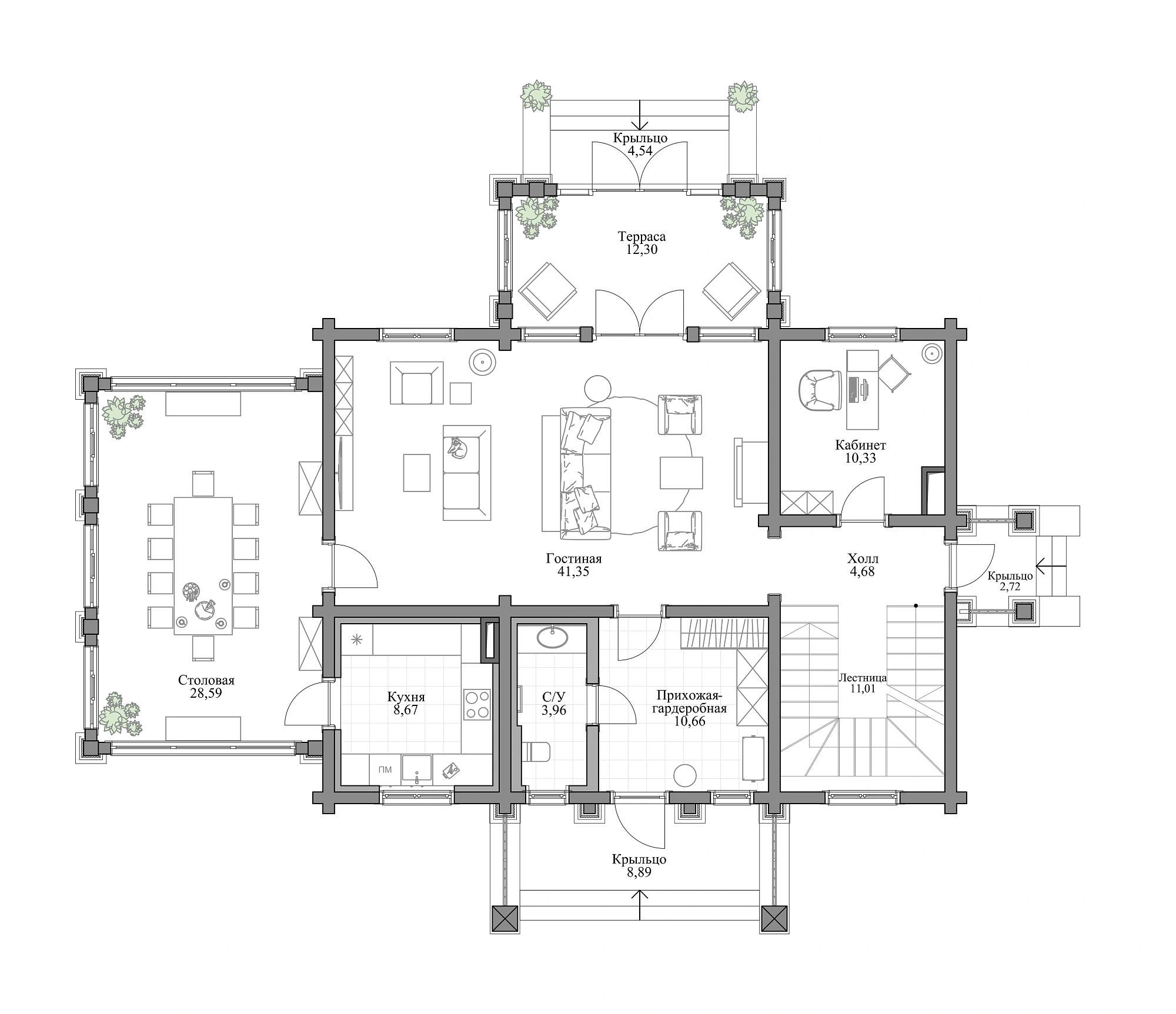
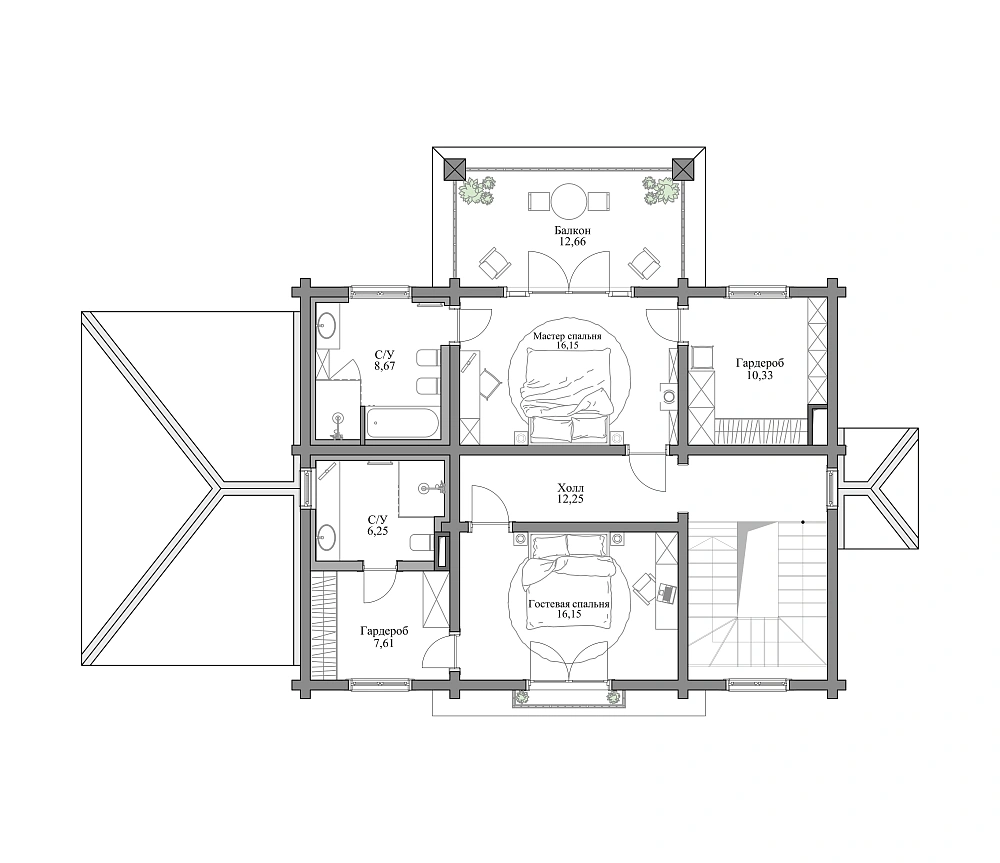
Дом в стиле русская усадьба в живописном месте рядом с лесом – таким был запрос семейной пары. Стиль выбран не случайно: участок располагается в Калужской области недалеко от монастыря Оптина Пустынь, и дом должен гармонично вписываться в местный архитектурный и природный ландшафт. Это не просто дача, а место, где время замедляет свой бег. Как прекрасно просыпаться утром под пение птиц и видеть за окном зелёный простор леса, который плавно перетекает в спокойствие монастырских куполов. А вечера проводить в тепле камина за семейными беседами или общением с гостями. Здесь можно найти вдохновение, уединение, гармонию с собой и окружающим миром. Этот дом создан для того, чтобы лелеять семейные традиции и дарить радость. Перед специалистами стояла задача воссоздать облик русской усадьбы. А это не просто дом – это целостный архитектурно-ландшафтный ансамбль. Участок граничит с лесом, что создает иллюзию перехода в пейзажный парк и лесные угодья, как это было в усадьбах XVIII века. Симметричное двухэтажное здание из бруса площадью 237,77 м2 венчает вальмовая крыша с фронтонами по двум сторонам. Три входные группы и терраса украшены колоннами, а окна – элегантными наличниками, характерными для стиля усадьбы. Фасады выполнены в светло-сером цвете с белыми колоннами и наличниками. Изюминка проекта – витражные панорамные окна столовой и террасы. Дом спланирован таким образом, чтобы обеспечить семье и персоналу комфорт и приватность. Первый этаж занимает площадь 147,7 м2. С главного крыльца вход ведет в просторную прихожую-гардеробную с системой хранения и санузлом. В центральной части этажа – гостиная с мягкой зоной, камином и зоной ТВ. Из гостиной можно выйти на террасу. Благодаря теплому полу здесь можно поддерживать комфортную температуру даже в холодное время года. В левом крыле находится большая столовая для приема гостей площадью 28,59 м2. Оттуда ведет вход в кухню – ее специально сделали изолированной, чтобы запахи от приготовления пищи не распространялись по дому. Правое крыло первого этажа занимают кабинет и холл с лестницей на второй этаж. На втором этаже площадью 90,07 м2 находятся две спальни – обе оборудованы гардеробными и санузлами. Мастер-спальня 16,15 м2 с панорамным остеклением имеет выход на видовой балкон площадью 12,66 м2. В гостевой спальне тоже панорамное окно и французский балкон. Комнаты разделены просторным холлом и представляют собой два самодостаточных блока. Высота потолков на первом этаже 3 м, на втором – переменная: от 2,5 до 3,5 м.

общая площадь
237,77 м²
площадь 1 этажа
147,7 м²
площадь 2 этажа
90,07 м²
этажность
2

Планы дома

Индивидуальный проект

1 этаж
2 этаж
Не можете найти подходящий проект?

Обсудим ваш будущий дом?

Станьте ближе к своей мечте

Обсудим ваш будущий дом

8 495 120-28-88
Москва
8 812 270-75-70
Санкт-Петербург
Свяжитесь с нашими
специалистами
Оставьте свои контактные данные, чтобы представители компании Starkwood связались с вами в ближайшее время и проконсультировали по всем вопросам.
Как удобнее с вами связаться
  • Написать в Viber
  • Написать в WhatsApp
  • Написать в Telegram
  • Отправить Sms
+7 (495) 236-83-70
Москва
+7 (812) 612-71-07
Санкт-Петербург
Оставить заявку
Как удобнее с вами связаться
  • Написать в Viber
  • Написать в WhatsApp
  • Написать в Telegram
  • Отправить Sms
8 495 120-28-88
Москва
8 812 270-75-70
Санкт-Петербург
Свяжитесь с нашими
специалистами
Оставьте свои контактные данные, чтобы представители компании Starkwood связались с вами в ближайшее время и проконсультировали по всем вопросам.